M—AO
27
INCLUSIVE SHAPE
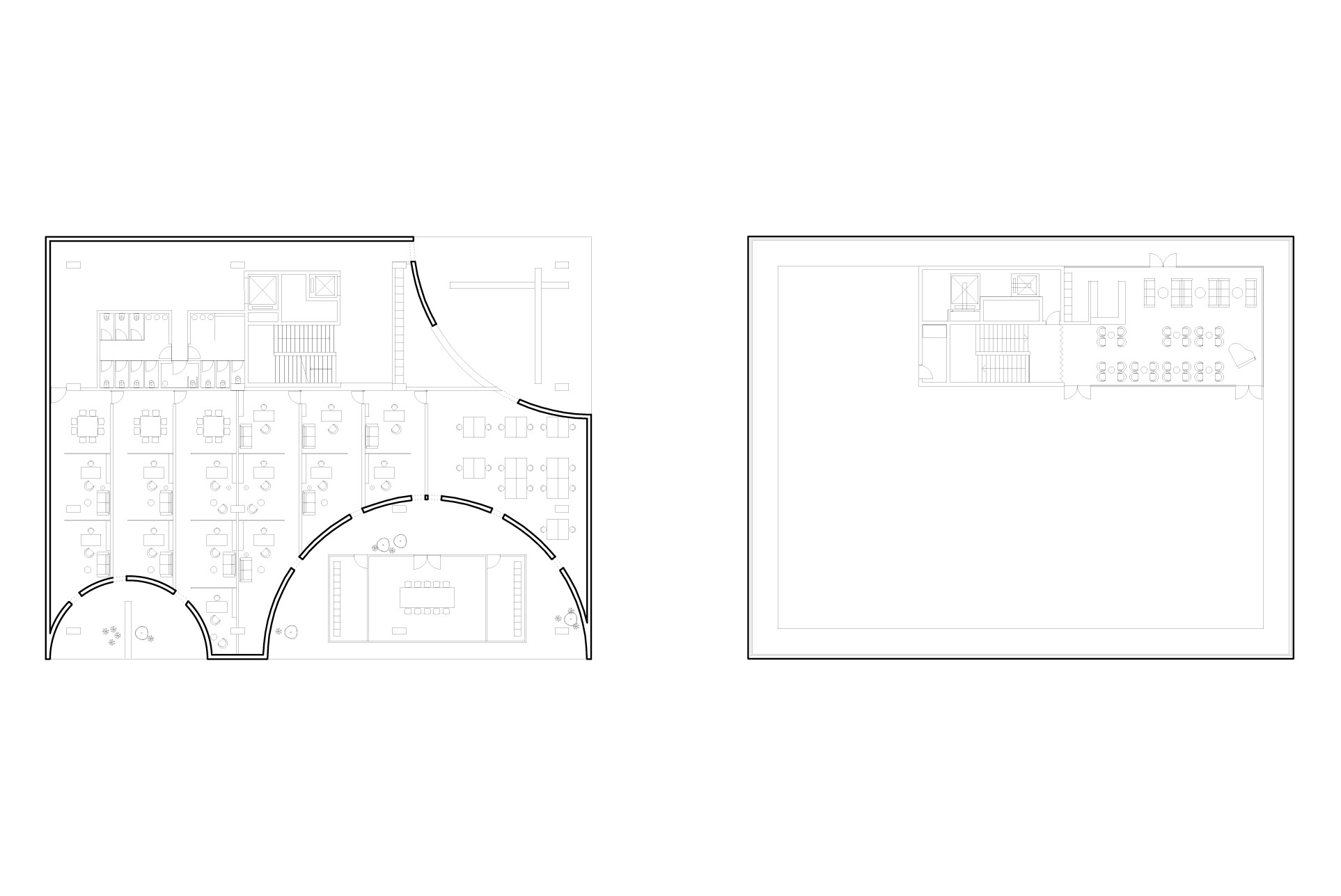
Extending the full potential of both building and city relation, the New Union of Bulgarian Artists (N-UBA) explores a typological and programmatic scheme that creates a clear internal organization while establishing a new public space approach merged with the urban fabric. The project sets up through a strong geometric composition that explores the meaning of the spaces.
The circular geometry pursues the multidirrectional circuits and inter-relational spaces. Thus so the intersection of those shapes and the perimentral orthogonality creates an orderly image that the building could have in relation to the surrounding. That´s the identity that we recover through a contemporary language understanding the matter of light, space and shape .
The result is the re-creation of a singular building that is reorganised to have a coherent programmatic articulation with a functional workflow.
Project info:
Type: Cultural - competition for Art Center
Area: 6500 sqm
Location: Sofia, Bulgaria
Year: 2014
Team: Ivo Vaz Barbosa, José Martins
The circular geometry pursues the multidirrectional circuits and inter-relational spaces. Thus so the intersection of those shapes and the perimentral orthogonality creates an orderly image that the building could have in relation to the surrounding. That´s the identity that we recover through a contemporary language understanding the matter of light, space and shape .
The result is the re-creation of a singular building that is reorganised to have a coherent programmatic articulation with a functional workflow.
Project info:
Type: Cultural - competition for Art Center
Area: 6500 sqm
Location: Sofia, Bulgaria
Year: 2014
Team: Ivo Vaz Barbosa, José Martins