M—AO
30
DElLPHI IMAGINARY
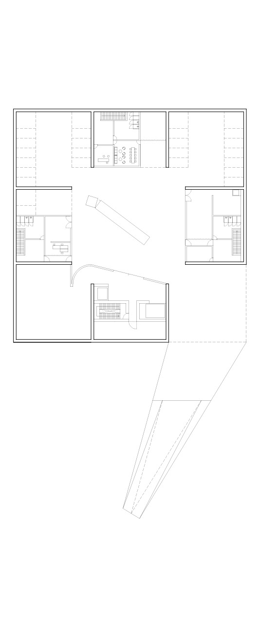
It is defined a public space that qualifies the South harbour and considering the proposal as an input that gives it continuity, using the building as a pivot that references the urban flows. The volume intends to draw the urban front finding its position using the Tahtitornin Vuori Park as a backdrop. It’s rotation its exact proportion establishes a vertical edges as line of force with the territory.
The pure geometry was carried has an extreme vision to assume an imposing piece that explores the antithesis of the La Culture-monde (LIPOVETSKY; SERROY, 2008) of the contemporary condition.
Appealing to the Delphi complex in ancient Greece, a place was created exploring the notion of reference piece in territory and the way we see and feel depending on the position of the observer.
Project info:
Type: Cultural — competition for Guggenheim Museum
Size: 12000 sqm
Location: Helsinki, Finland
Year: 2014
Team: Ivo Vaz Barbosa, José Martins
The pure geometry was carried has an extreme vision to assume an imposing piece that explores the antithesis of the La Culture-monde (LIPOVETSKY; SERROY, 2008) of the contemporary condition.
Appealing to the Delphi complex in ancient Greece, a place was created exploring the notion of reference piece in territory and the way we see and feel depending on the position of the observer.
Project info:
Type: Cultural — competition for Guggenheim Museum
Size: 12000 sqm
Location: Helsinki, Finland
Year: 2014
Team: Ivo Vaz Barbosa, José Martins