M—AO
58
A LINE HOUSE
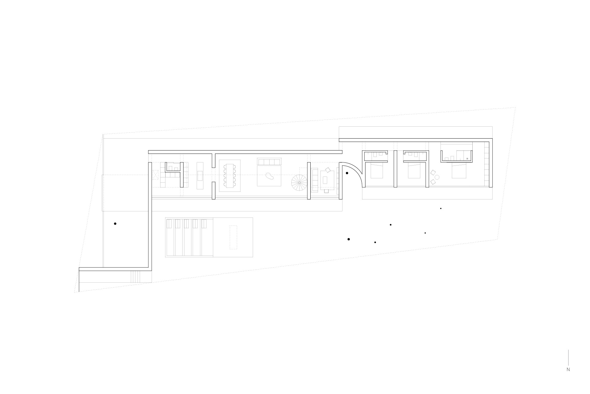
The project is defined by a continuous wall - as a line - that establishes a typology hierarchy (social to private areas) and a sequence of programatic spaces waging dynamic flows inside and outside. The wall was adjusted respecting the classified trees promoting wholesome architectural grammar.
Through a modular structural grid the several uses are disposed over the glass panel that opens onto the garden to North. The different heights of the ceiling, the tree disposal and the body of water - and it’s relations - allows different atmospheres as one goes deeper into the house.
Project info:
Type: Housing
Area: 250 sqm
Location: Curitiba, Brazil
Year: 2016
Team: Hugo Santoalha, João Ferreira, José Martins, Marta Machado
Through a modular structural grid the several uses are disposed over the glass panel that opens onto the garden to North. The different heights of the ceiling, the tree disposal and the body of water - and it’s relations - allows different atmospheres as one goes deeper into the house.
Project info:
Type: Housing
Area: 250 sqm
Location: Curitiba, Brazil
Year: 2016
Team: Hugo Santoalha, João Ferreira, José Martins, Marta Machado