M—AO
121
HIGH DOORS, LOW CEILINGS
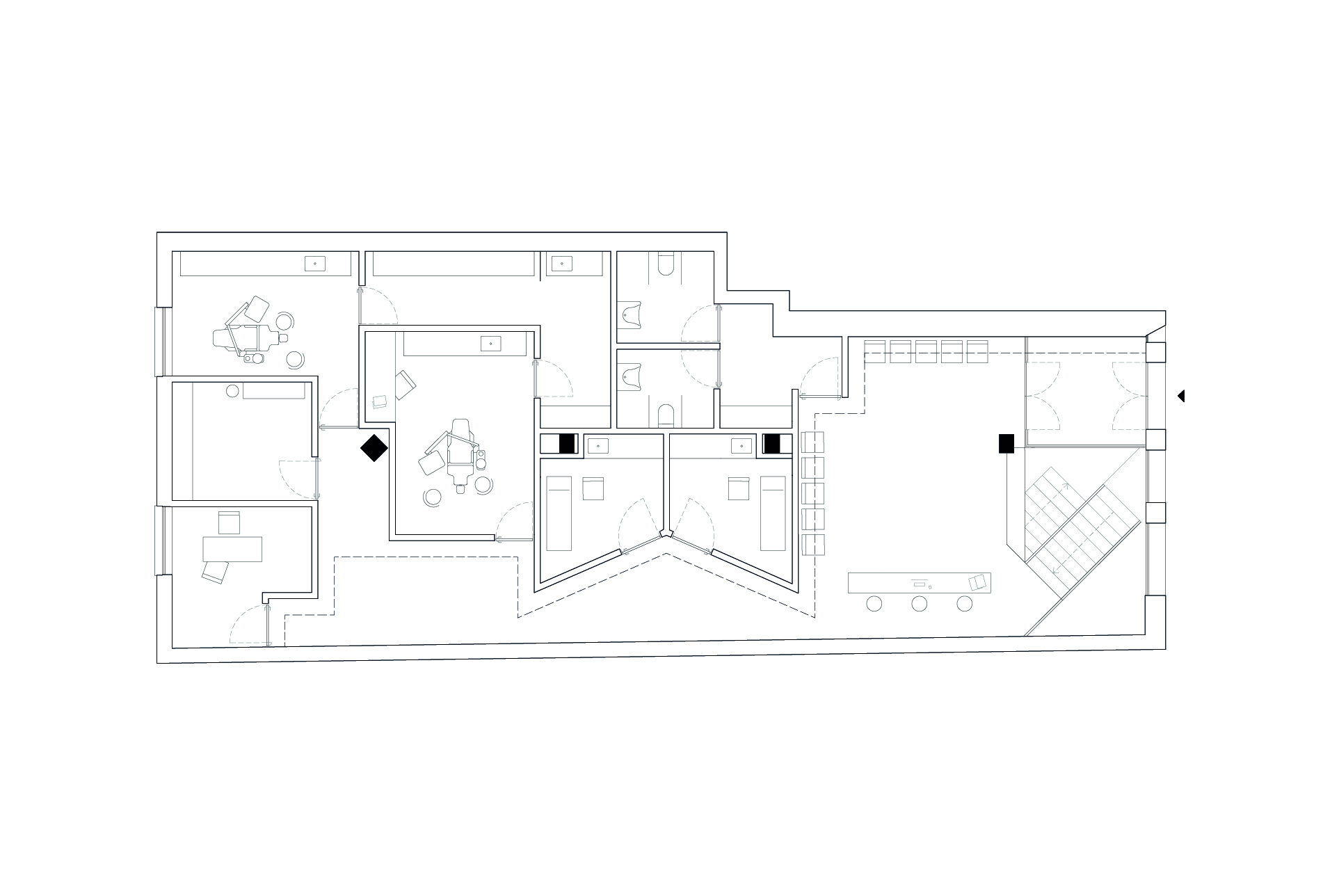
The project is located in a former bank, whose original layout was structured according to an arrangement of diagonals. This geometry defined the placement of large pillars throughout the space, which heavily influenced the design approach. The lab and medical clinic project was based on this orientation and scale. Through the construction process, we discovered the true shape of the pillars, which are orthogonal and half the expected dimension.
The layout of the working spaces adapted to these circumstances, especially by expanding in square meters to accommodate the necessary number of medical offices. The typology was organised into three types of spaces: public (reception), semi-public (corridor/waiting area for the offices), and private (basement).
To enhance the different functions and experiences of the spaces, “high doors and low ceilings” were proposed at the access to the inner medical clinics. Essentially, the main concern was to plan a pleasant promenade leading to the private areas.
Project info:
Type: Commercial
Area: 350 sqm
Location Guimarães, Portugal
Year: 2023-2024
Team: Beatriz Soares, José Martins, Mariana Almeida, Matilde Ferreira, Miguel Pereira
Photography: Hugo Carvalho Araújo | NUDO
The layout of the working spaces adapted to these circumstances, especially by expanding in square meters to accommodate the necessary number of medical offices. The typology was organised into three types of spaces: public (reception), semi-public (corridor/waiting area for the offices), and private (basement).
To enhance the different functions and experiences of the spaces, “high doors and low ceilings” were proposed at the access to the inner medical clinics. Essentially, the main concern was to plan a pleasant promenade leading to the private areas.
Project info:
Type: Commercial
Area: 350 sqm
Location Guimarães, Portugal
Year: 2023-2024
Team: Beatriz Soares, José Martins, Mariana Almeida, Matilde Ferreira, Miguel Pereira
Photography: Hugo Carvalho Araújo | NUDO